Selbon Estate Agents are delighted to present this exciting and unique opportunity to acquire a three-bedroom semi-detached home, offered for sale with no onward chain, and providing the perfect chance to complete a renovation project to your own specification.

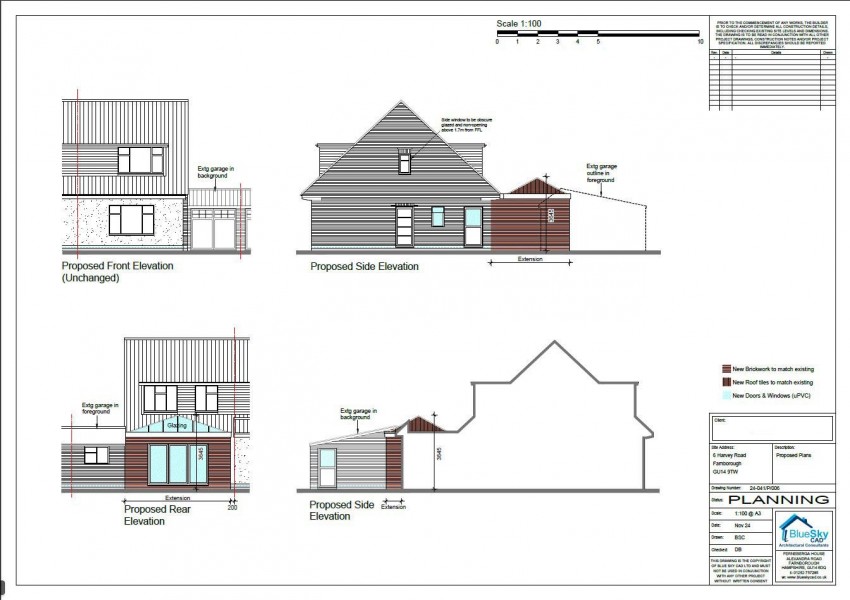
Significant progress has already been made by the current owner, with works carried out under granted planning permission (ref: 25/00165/FULPP).

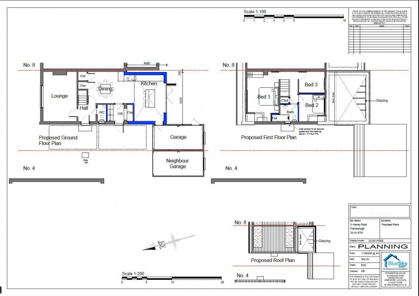
Much of the structural work has been completed, particularly to the first floor, where the layout has been reconfigured to provide three bedrooms. A newly installed family bathroom is already in place, complete with bath and shower over, giving buyers an excellent head start.

To the ground floor, the vision continues with a single-storey extension that now requires completion, including roofing and opening through to the existing space. This creates a fantastic opportunity to design and install a bespoke kitchen/dining area, with space for a separate utility room, allowing the new owner to truly put their own stamp on the property.

Once finished, the home will offer a generous entrance hall, a front aspect living room, and a stunning open-plan kitchen/dining space — ideal for modern family living and entertaining.

Externally, the property benefits from both front and rear gardens, with a south-westerly facing rear garden offering the perfect spot to enjoy afternoon and evening sun. There is further potential to create a garden office or studio, as well as landscape to personal taste. To the front, a generous block paved driveway provides off-road parking for several vehicles and gives access to the garage.

This is a rare opportunity to acquire a home at an advanced stage of renovation and complete it to your own vision, while adding significant value.

Harvey Road is ideally located in a popular residential area of Farnborough, close to local shops, amenities and well-regarded schools. Farnborough Mainline Station and the M3/A331 are also easily accessible.
  • Three Bedrooms
  • Semi Detached Home
  • Fully Refurbished Bathroom
  • Unique Opportunity
  • Kitchen/Dining Room Potential
  • Living Room
  • Utility
  • No Onward Chain
  • Off Street Parking
  • Garage
Floorplan for Harvey Road, Farnborough
EPC Graph for Harvey Road, Farnborough
Similar Properties

Get an instant online valuation

Find out how much your property is worth